ここから本文
2026年01月26日 更新
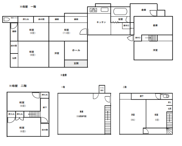
詳細情報635 ★3D-VRあり★
| 3D-VR視聴 | 3D-VR物件番号635号(外部サイト) |
| 登録年月日 |
2026年1月20日 |
| 所在地 |
ひろしまけんあきたかたし よしだちょうつねとも 広島県安芸高田市 吉田町常友 |
| 用途 | 居宅 |
| 構造 |
木造瓦葺2階建 |
| 建築面積 |
49.94㎡(敷地457.43㎡) |
| 延床面積 |
101.65㎡ |
| 建築時期 |
昭和51年4月 |
| 売却又は賃貸の別 |
売却 |
| 価格・賃貸料の希望 |
480万円 |
| 定期借家の借家期間 | ー |
| 飲用水 | 上水道・井戸水 |
| 電気 | 中国電力 |
| ガス |
プロパンガス |
| トイレの排水設備 | 汲み取り(簡易水洗・落下式便所) |
| 風呂の給湯設備 |
ガス給湯器 |
| 附帯物件 |
納屋 |
| 附帯物件の条件 |
上記価格に含めて売却 |
| 備考 |
修理不要(買主負担) |
| その他備考 |
ー |
| お問い合わせ先 |
〒730-0042 広島県広島市中区国泰寺町2丁目4-7 トータテ住宅販売株式会社 免許番号 国土交通大臣(8)第4315号 電話番号 082-247-4722 FAX 082-241-8579 営業日 月・火・水・金・土・日 営業時間 午前9時30分から午後8時まで |
【空き家情報バンクの注意事項】※
- 物件の購入等の決定にあたっては、お問い合わせ先にご連絡され、自身で実際に現地や物件の確認を行い、所有者や不動産業者等から十分に説明を受けて下さい。
- 登録物件の中には修繕が必要な物件や荷物が撤去されていない物件もあります。費用を売主(貸主)又は買主(借主)のどちらが負担するか説明を受けて、納得の上で契約をして下さい。
- 登録物件の中には、「土砂災害警戒区域」等にあたる物件も含まれています。ハザードマップ等で確認してください。
- 附帯物件として、農地(田や畑)を含む物件が登録されています。農地を売買又は賃貸する場合には、農業委員会の許可を受ける必要があり、農業委員会の許可を受けるには標準で1~2か月の時間を要します。また、農地について、賃貸の契約がされている場合があり、買主(借主)が、すぐに使用できない可能性があります。
※空き家情報バンクの一般的な共通事項のため、この物件が上記に該当するとは限りません。
お問い合わせ
企画部 政策企画課
窓口:安芸高田市役所 本庁第2庁舎 2階( 庁舎案内 )
FAX0826-42-4376